График работы
1, 2 и 3 мая — с 10:00 до 18:00 9 Мая — выходной день 10 и 11 мая — с 10:00 до 18:00

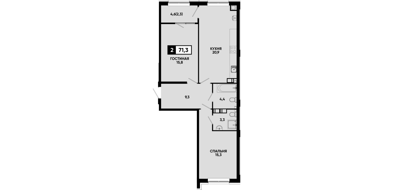
Планировка № 55

Сдача в 4 кв. 2026
1 подъезд
9 этаж
71,3 м²
15323083 ₽

Варианты отделки

Миндальная дымка

Тихий оттенок

Миндальная дымка

Обновленная интерпретация классического стиля — для ценителей традиционных цветов, материалов отделки и интерьерных решений

  • Жилые комнаты
  • Кухня
  • Прихожая
  • Санузел
Состав комплекта (позиции и количество) и смета подстраиваются под выбранную планировку.

ТИХИЙ ОТТЕНОК

Холодные оттенки серого в сочетании со светлым деревом создают атмосферу минимализма. Такой стиль открывает возможности: расставьте цветовые акценты с помощью мебели или сохраните интерьер монохромным

  • Жилые комнаты
  • Кухня
  • Прихожая
  • Санузел
Состав комплекта (позиции и количество) и смета подстраиваются под выбранную планировку.
Итоговая стоимость с ремонтом

9 140 300 ₽

Жилой квартал: «Моя легенда»
2-комнатная квартира: 71,3 м²
Стилистика ремонта: Комфорт+

Качественный ремонт за 75 дней

Я даю согласие на обработку персональных данных и принимаю условия политики конфиденциальности