назад
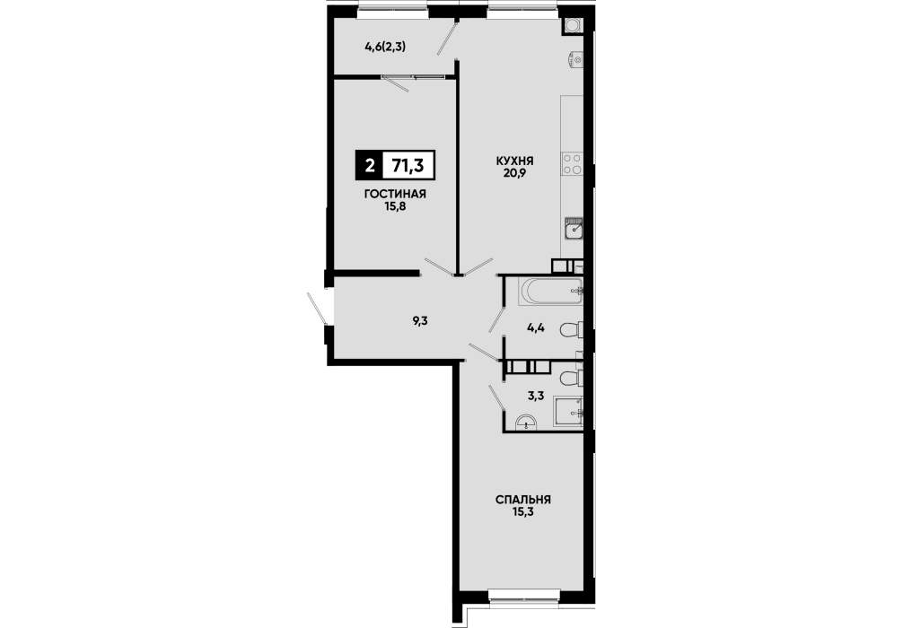
Планировка № 114
2К
Сдача в 4 кв. 2026
2 подъезд
5 этаж
49,8 м²
11481888 ₽